Expert Engineering Consultants
As leading experts on concrete pole design, manufacturing and use, we create viable solutions that others miss. PE Licenses in California, Washington, Nevada, Utah, Colorado, Idaho, Oregon, Florida, Georgia, Louisiana, New York, Pennsylvania, Rhode Island, Connecticut, South Carolina and North Carolina.




Our Expertise Matters
With a focus on innovative engineering, Lumibern delivers tailored solutions for street lighting, combining functionality and aesthetics to meet client needs effectively. Whether you are adding banners or catenary lighting to existing structures or upgrading the newest solar powered fixture, let us use our experience to help complete your project.
Structural Investigations and Inspection
Concrete Pole Inspections and review including routine inspections, in-plant inspections and fit-for use inspections and engineering review.






Lighting and Small Cell Support Design Services
Expert engineering consultants specializing in street lighting and small cell structure design, drafting, and pole solutions for your projects.
Design Drafting Solutions
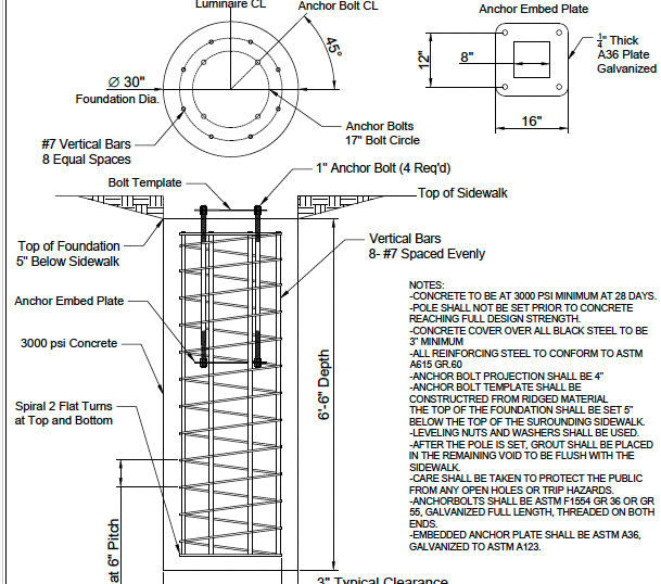
Comprehensive drafting services tailored for efficient street lighting layouts and foundation design


Pole Expertise
Professional inspection and design services ensuring durability and compliance with industry standards including relevent ASCE, AASHTO, ACI, TIA, ASTM and NESC requirements.






Gallery
Explore our innovative street lighting design and engineering solutions.






